Boulevarden 33A, 1. mf., 9000 Aalborg
- Delevenlig nej
- Altan nej
- Husdyr nej
- Vaskemaskine nej
- Tørretumbler nej
- Fællesvaskeri ja
- Opvaskemaskine ja
- Køle/frys ja
- Komfur ja
- Emhætte ja
- Dørtelefon ja
- Depotrum ja
- Parkering ja
- Cykelparkering ja










Nyrenoveret tre værelses lejlighed i Aalborgs absolutte midtby!
Indretning:
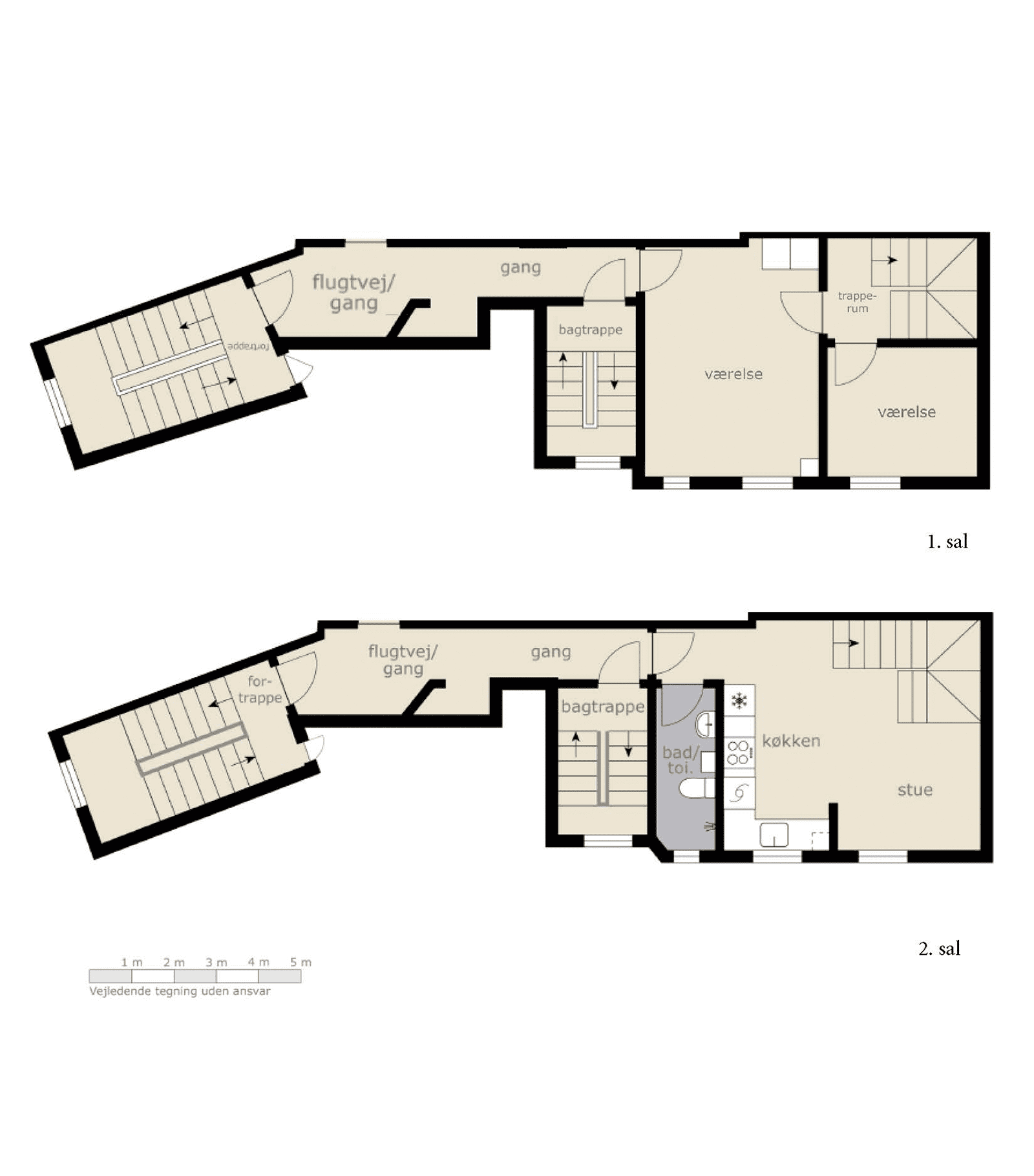
Lejligheden er nybygget i to plan med nye lydisolerende vinduer og masser af dagslys. Fra entréen på 1. sal har du toilet med bruseniche på højre hånd, og ligeud kommer køkken-alrummet med et lækkert og godt udnyttet vinkelkøkken med en masse skabsplads og opvaskemaskine, derudover er der god plads til spisebordsarrangement. Trappen føre dig op til 2. salen, hvor soveværelset ligger på venstre hånd og tv-stuen ligger forud. Alt inventar er fra HTH – lige fra garderobeskabe til køkken og bad.
Beliggenhed:
I Aalborgs nok mest betrådte gade, ligger der en skjult perle af en treværelses lejlighed. Udenfor din dør ligger der et utal af shoppingmuligheder, dagligvarerindkøb og transportmuligheder. Du får få minutters gang til grønne arealer og havnefronten.
(Sags nr.: 200-4-5)
FAKTA
• Månedlig leje:
• Vand aconto:
• Varme aconto:
• Forudbetalt leje:
• Depositum:
• Boligareal:
• Boligtype:
• Overtagelse:
.
6.995kr.
300 kr.
600 kr.
0 kr.
20.985 kr.
84 kvm
3-vær.
01.03.2026

Maria & Lisa
Relaterede lejemål
Vesterbrogade 18, 4. th., 9400 Nørresundby
Vesterbrogade 18, 4. th., 9400 Nørresundby Delevenlig nej Altan nej...
- 2 Værelser
- 1 Badeværelse
- 60 m²
Østergade 4C, 3. 4, 9800 Hjørring
Østergade 4C, 3. 4, 9800 Hjørring Delevenlig nej Altan nej...
- 1 Værelse
- 1 Badeværelse
- 36 m²
Fyensgade 32, 1. th., 9000 Aalborg
Fyensgade 32, 1. th., 9000 Aalborg Delevenlig nej Altan ja...
- 2 Værelser
- 1 Badeværelse
- 64 m²
Fyensgade 32, 4. th., 9000 Aalborg
Fyensgade 32, 4. th., 9000 Aalborg Delevenlig nej Altan ja...
- 2 Værelser
- 1 Badeværelse
- 60 m²
Fyensgade 24, st. tv., 9000 Aalborg
Fyensgade 24, st. tv., 9000 Aalborg Delevenlig nej Altan ja...
- 2 Værelser
- 1 Badeværelse
- 63 m²
Reberbansgade 12A, 1. tv., 9000 Aalborg
Reberbansgade 12A, 1. tv., 9000 Aalborg Delevenlig ja Altan nej...
- 3 Værelser
- 1 Badeværelse
- 55 m²
Vendelbogade 50B, 1. tv., 9800 Hjørring
Vendelbogade 50B, 1. tv., 9800 Hjørring Delevenlig nej Altan nej...
- 3 Værelser
- 1 Badeværelse
- 99 m²
Christiansgade 62, 1., 9000 Aalborg
Christiansgade 62, 1., 9000 Aalborg Delevenlig ja Altan nej Husdyr...
- 3 Værelser
- 1 Badeværelse
- 99 m²
Kastetvej 44, 2. tv., 9000 Aalborg
Kastetvej 44, 2. tv., 9000 Aalborg Delevenlig nej Altan nej...
- 2 Værelser
- 1 Badeværelse
- 58 m²
Herluf Trolles Gade 30, 3. tv., 9000 Aalborg
Herluf Trolles Gade 30, 3. tv., 9000 Aalborg Delevenlig nej...
- 2 Værelser
- 1 Badeværelse
- 60 m²
Fredericiagade 18, st. tv., 9000 Aalborg
Fredericiagade 18, st. tv., 9000 Aalborg Delevenlig nej Altan nej...
- 2 Værelser
- 1 Badeværelse
- 54 m²
Herluf Trolles Gade 30, 1. tv., 9000 Aalborg
Herluf Trolles Gade 30, 1. tv., 9000 Aalborg Delevenlig nej...
- 2 Værelser
- 1 Badeværelse
- 60 m²
Fredericiagade 18A, 1. th., 9000 Aalborg
Fredericiagade 18A, 1. th., 9000 Aalborg Delevenlig nej Altan nej...
- 2 Værelser
- 1 Badeværelse
- 55 m²
Kastetvej 74, st. tv., 9000 Aalborg
Kastetvej 74, st. tv., 9000 Aalborg Delevenlig nej Altan nej...
- 2 Værelser
- 1 Badeværelse
- 78 m²
Danmarksgade 88, 2. th., 9000 Aalborg
Danmarksgade 88, 2. th., 9000 Aalborg Delevenlig ja Altan nej...
- 4 Værelser
- 1 Badeværelse
- 100 m²
Hasserisgade 7B, 9000 Aalborg
Hasserisgade 7B, 9000 Aalborg Delevenlig nej Altan nej Husdyr nej...
- 2 Værelser
- 1 Badeværelse
- 52 m²
Schleppegrellsgade 54, st. tv., 9000 Aalborg
Schleppegrellsgade 54, st. tv.., 9000 Aalborg Delevenlig nej Altan nej...
- 2 Værelser
- 1 Badeværelse
- 73 m²
Vendelbogade 50D, 2. th., 9800 Hjørring
Vendelbogade 50D, 2. th., 9800 Hjørring Delevenlig nej Altan nej...
- 2 Værelser
- 1 Badeværelse
- 85 m²
Schleppegrellsgade 62, 3. tv., 9000 Aalborg
Schleppegrellsgade 62, 3. tv., 9000 Aalborg Delevenlig nej Altan nej...
- 2 Værelser
- 1 Badeværelse
- 59 m²
Fyensgade 30, 4. th., 9000 Aalborg
Fyensgade 30, 4. th., 9000 Aalborg Delevenlig ja Altan ja...
- 3 Værelser
- 1 Badeværelse
- 90 m²
Vesterbrogade 20, 4. tv., 9400 Nørresundby
Vesterbrogade 20, 4. tv., 9400 Nørresundby Delevenlig nej Altan nej...
- 2 Værelser
- 1 Badeværelse
- 50 m²
Danmarksgade 88, 3. th., 9000 Aalborg
Danmarksgade 88, 3. th., 9000 Aalborg Delevenlig ja Altan nej...
- 3 Værelser
- 1 Badeværelse
- 100 m²
Blomsterkæret 4, 9800 Hjørring
Blomsterkæret 4, 9800 Hjørring Delevenlig nej Terrasse ja Husdyr nej...
- 3 Værelser
- 1 Badeværelse
- 102 m²
Hasserisgade 7, 5. tv., 9000 Aalborg
Hasserisgade 7, 5. tv., 9000 Aalborg Delevenlig nej Altan nej...
- 2 Værelser
- 1 Badeværelse
- 60 m²
Boulevarden 33A, 1. mf., 9000 Aalborg
Boulevarden 33A, 1. mf., 9000 Aalborg Delevenlig nej Altan nej...
- 3 Værelser
- 1 Badeværelse
- 84 m²
Fyensgade 22, 4. tv., 9000 Aalborg
Fyensgade 22, 4. tv., 9000 Aalborg Delevenlig nej Altan ja...
- 2 Værelser
- 1 Badeværelse
- 59 m²
Herluf Trolles Gade 31, 2. th., 9000 Aalborg
Herluf Trolles Gade 31, 2. th., 9000 Aalborg Delevenlig nej...
- 2 Værelser
- 1 Badeværelse
- 71 m²