Vesterbrogade 20, 4. tv., 9400 Nørresundby
- Delevenlig nej
- Altan nej
- Husdyr nej
- Vaskemaskine nej
- Tørretumbler nej
- Fællesvaskeri ja
- Opvaskemaskine ja
- Køle/frys ja
- Komfur ja
- Emhætte ja
- Dørtelefon ja
- Depotrum ja
- Parkering ja
- Cykelparkering ja










Eksklusiv taglejlighed med udsigt udover Aalborg og Limfjorden!
Indretning:
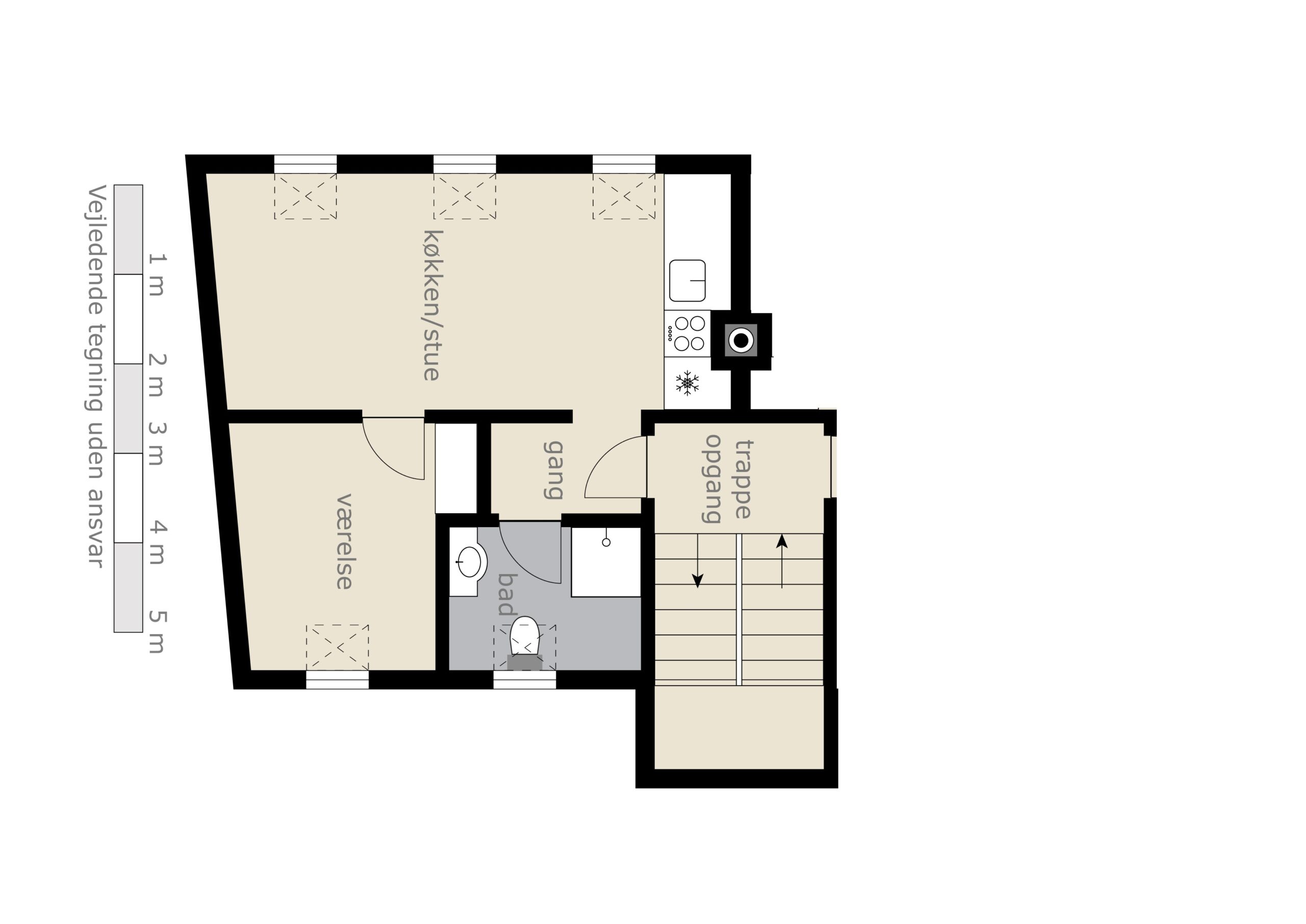
Vi skal op på fjerde sal i opgang 20, den øverste lejlighed på venstre hånd. Vi træder ind i en fin entréen, hvor der er mulighed for at opbevarer sæsonens overtøj og sko. Fra gangen er der også adgang til det store rummelige og moderne badeværelse, hvor der er alt det nødvendige. Fra gangen er der adgang til det store køkken-alrum som optager størstedelen af de kvadratmeter. De 3 vinduer i køkken-alrummet kan åbnes op, så det bliver 3 altaner, agtigt, hvor udsigten til Limfjorden kan nydes. Du har udsyn til stort set hele Aalborg-siden. Alle lejlighedens vinduer er desuden lydisoleret, så du bemærker ikke lyden fra den hektiske hverdagen uden for din hoveddør. Fra stuen er der adgang til soveværelset, som ligesom resten af lejligheden har charmerende fritlagte bjælker samt gode højskabe. Hele lejligheden har fået en grundig overhaling med HTH-elementer, nye gulve og vægmaling. Det er alt i alt, en meget fin lejlighed i god kvalitet.
Beliggenhed:
Lejligheden ligger lige i det centrale Nørresundby, hvor indkøbsmulighederne er mange, og der er kort afstand til det meste. Derudover får man ikke bare udsigten til fjorden, men man får også meget kort afstand hertil.
(Sags nr.: 110-4-9)
FAKTA
• Månedlig leje:
• Vand aconto:
• Varme aconto:
• Forudbetalt leje:
• Depositum:
• Boligareal:
• Boligtype:
• Overtagelse:
.
6.495 kr.
300 kr.
600 kr.
0 kr.
19.485 kr.
50 kvm
2-vær.
01-02-2026

Maria & Lisa
Relaterede lejemål
Vesterbrogade 18, 4. th., 9400 Nørresundby
Vesterbrogade 18, 4. th., 9400 Nørresundby Delevenlig nej Altan nej...
- 2 Værelser
- 1 Badeværelse
- 60 m²
Østergade 4C, 3. 4, 9800 Hjørring
Østergade 4C, 3. 4, 9800 Hjørring Delevenlig nej Altan nej...
- 1 Værelse
- 1 Badeværelse
- 36 m²
Fyensgade 32, 1. th., 9000 Aalborg
Fyensgade 32, 1. th., 9000 Aalborg Delevenlig nej Altan ja...
- 2 Værelser
- 1 Badeværelse
- 64 m²
Fyensgade 32, 4. th., 9000 Aalborg
Fyensgade 32, 4. th., 9000 Aalborg Delevenlig nej Altan ja...
- 2 Værelser
- 1 Badeværelse
- 60 m²
Fyensgade 24, st. tv., 9000 Aalborg
Fyensgade 24, st. tv., 9000 Aalborg Delevenlig nej Altan ja...
- 2 Værelser
- 1 Badeværelse
- 63 m²
Reberbansgade 12A, 1. tv., 9000 Aalborg
Reberbansgade 12A, 1. tv., 9000 Aalborg Delevenlig ja Altan nej...
- 3 Værelser
- 1 Badeværelse
- 55 m²
Vendelbogade 50B, 1. tv., 9800 Hjørring
Vendelbogade 50B, 1. tv., 9800 Hjørring Delevenlig nej Altan nej...
- 3 Værelser
- 1 Badeværelse
- 99 m²
Christiansgade 62, 1., 9000 Aalborg
Christiansgade 62, 1., 9000 Aalborg Delevenlig ja Altan nej Husdyr...
- 3 Værelser
- 1 Badeværelse
- 99 m²
Kastetvej 44, 2. tv., 9000 Aalborg
Kastetvej 44, 2. tv., 9000 Aalborg Delevenlig nej Altan nej...
- 2 Værelser
- 1 Badeværelse
- 58 m²
Herluf Trolles Gade 30, 3. tv., 9000 Aalborg
Herluf Trolles Gade 30, 3. tv., 9000 Aalborg Delevenlig nej...
- 2 Værelser
- 1 Badeværelse
- 60 m²
Fredericiagade 18, st. tv., 9000 Aalborg
Fredericiagade 18, st. tv., 9000 Aalborg Delevenlig nej Altan nej...
- 2 Værelser
- 1 Badeværelse
- 54 m²
Herluf Trolles Gade 30, 1. tv., 9000 Aalborg
Herluf Trolles Gade 30, 1. tv., 9000 Aalborg Delevenlig nej...
- 2 Værelser
- 1 Badeværelse
- 60 m²
Fredericiagade 18A, 1. th., 9000 Aalborg
Fredericiagade 18A, 1. th., 9000 Aalborg Delevenlig nej Altan nej...
- 2 Værelser
- 1 Badeværelse
- 55 m²
Kastetvej 74, st. tv., 9000 Aalborg
Kastetvej 74, st. tv., 9000 Aalborg Delevenlig nej Altan nej...
- 2 Værelser
- 1 Badeværelse
- 78 m²
Danmarksgade 88, 2. th., 9000 Aalborg
Danmarksgade 88, 2. th., 9000 Aalborg Delevenlig ja Altan nej...
- 4 Værelser
- 1 Badeværelse
- 100 m²
Hasserisgade 7B, 9000 Aalborg
Hasserisgade 7B, 9000 Aalborg Delevenlig nej Altan nej Husdyr nej...
- 2 Værelser
- 1 Badeværelse
- 52 m²
Schleppegrellsgade 54, st. tv., 9000 Aalborg
Schleppegrellsgade 54, st. tv.., 9000 Aalborg Delevenlig nej Altan nej...
- 2 Værelser
- 1 Badeværelse
- 73 m²
Vendelbogade 50D, 2. th., 9800 Hjørring
Vendelbogade 50D, 2. th., 9800 Hjørring Delevenlig nej Altan nej...
- 2 Værelser
- 1 Badeværelse
- 85 m²
Schleppegrellsgade 62, 3. tv., 9000 Aalborg
Schleppegrellsgade 62, 3. tv., 9000 Aalborg Delevenlig nej Altan nej...
- 2 Værelser
- 1 Badeværelse
- 59 m²
Fyensgade 30, 4. th., 9000 Aalborg
Fyensgade 30, 4. th., 9000 Aalborg Delevenlig ja Altan ja...
- 3 Værelser
- 1 Badeværelse
- 90 m²
Vesterbrogade 20, 4. tv., 9400 Nørresundby
Vesterbrogade 20, 4. tv., 9400 Nørresundby Delevenlig nej Altan nej...
- 2 Værelser
- 1 Badeværelse
- 50 m²
Danmarksgade 88, 3. th., 9000 Aalborg
Danmarksgade 88, 3. th., 9000 Aalborg Delevenlig ja Altan nej...
- 3 Værelser
- 1 Badeværelse
- 100 m²
Blomsterkæret 4, 9800 Hjørring
Blomsterkæret 4, 9800 Hjørring Delevenlig nej Terrasse ja Husdyr nej...
- 3 Værelser
- 1 Badeværelse
- 102 m²
Hasserisgade 7, 5. tv., 9000 Aalborg
Hasserisgade 7, 5. tv., 9000 Aalborg Delevenlig nej Altan nej...
- 2 Værelser
- 1 Badeværelse
- 60 m²
Boulevarden 33A, 1. mf., 9000 Aalborg
Boulevarden 33A, 1. mf., 9000 Aalborg Delevenlig nej Altan nej...
- 3 Værelser
- 1 Badeværelse
- 84 m²
Fyensgade 22, 4. tv., 9000 Aalborg
Fyensgade 22, 4. tv., 9000 Aalborg Delevenlig nej Altan ja...
- 2 Værelser
- 1 Badeværelse
- 59 m²
Herluf Trolles Gade 31, 2. th., 9000 Aalborg
Herluf Trolles Gade 31, 2. th., 9000 Aalborg Delevenlig nej...
- 2 Værelser
- 1 Badeværelse
- 71 m²