Østergade 26A, 9800 Hjørring
Stort og velplaceret erhvervslejemål i Hjørrings gågade på hele 68 kvm!



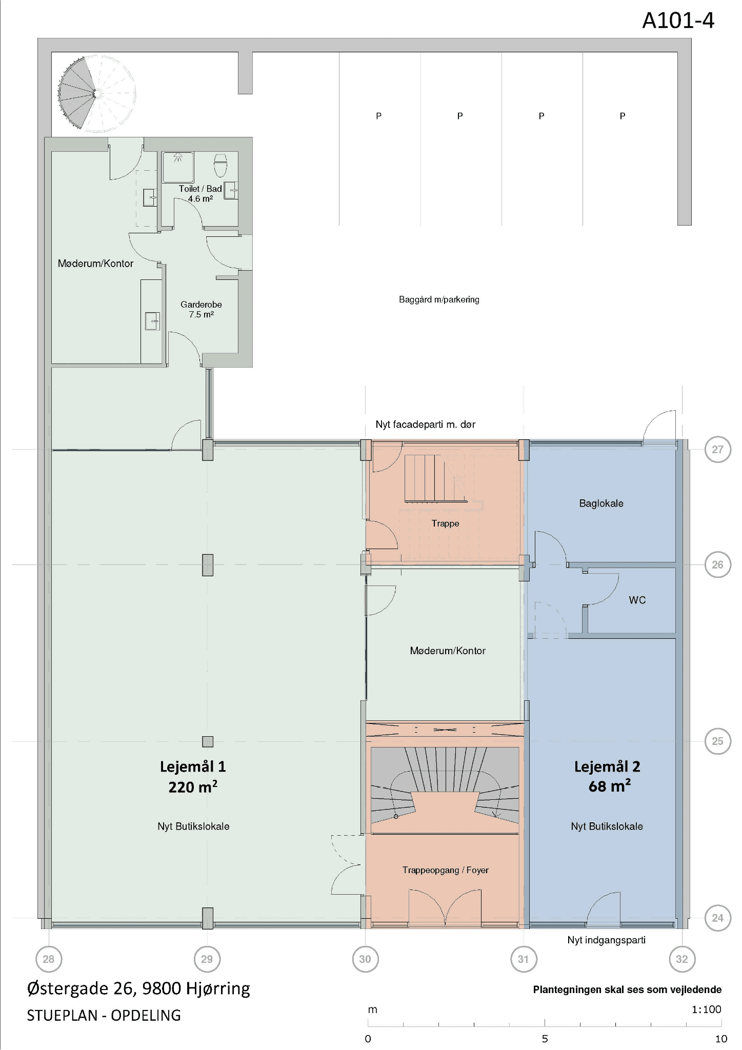
Erhvervslejemål på Østergade 26A, 9800 Hjørring
Lejemålet er attraktivt placeret midt i Hjørrings gågade, tæt på Metropol Shoppingcenter, hvilket giver en synlig og central beliggenhed med nem adgang for både medarbejdere og besøgende. Ejendommen har tidligere huset Danske Bank gennem mange år og er derfor en velkendt og markant bygning i bybilledet. Blandt naboerne finder man bl.a. Sportsmaster, Louis Nielsen, Fjerrenseriet og Café Capu. Gennem baggården er der nem adgang til vareindlevering og tilknyttede parkeringspladser. Derudover findes der flere offentlige parkeringspladser i området – bl.a. på Mammutpladsen og Vendelbopladsen.
Funktionelle faciliteter:
- Synlig og central beliggenhed
- Flere anvendelsesmuligheder
- Gode parkeringsmuligheder
- Regulær planløsning
- Mulighed for momsfri leje
Lejemålet i stueplan består af 68 m² og indeholder et lyst og regulært butikslokale med direkte indgang fra gågaden via nyt facadeparti. Derudover findes et baglokale med plads til mindre lager eller personalerum samt et separat toilet. Lejemålet har desuden adgang til baggården, hvor der er mulighed for parkering og varelevering. Derudover findes et baglokale samt et wc.
OBS. Lejemålet kan lejes momsfrit
(Sags nr.: 110-35-2)

Tobias Kent H. Kristensen
Relaterede lejemål
Farøvej 1B, 9800 Hjørring
Farøvej 1B, 9800 Hjørring Stort butikslokale på 721 m² med...
- 721 m²
Mammutpladsen 5, 9800 Hjørring (Rum 9)
Mammutpladsen 5, 9800 Hjørring (Rum 9) Professionelt kontor- og klinikfællesskab...
- 47.6 m²
Mammutpladsen 5, 9800 Hjørring
Mammutpladsen 5, 9800 Hjørring Stort lejemål på hele 312 kvm...
- 312 m²
Sct. Olai Plads 1C (Butik B), 9800 Hjørring
Sct. Olai Plads 1C (Butik B), 9800 Hjørring Butikslokale på...
- 381 m²
Østergade 11, 9800 Hjørring
Østergade 11, 9800 Hjørring Attraktivt butikslokale på 175 kvm i...
- 175 m²
Reberbansgade 12, st. tv., 9000 Aalborg
Reberbansgade 12, st. tv., 9000 Aalborg Velbeliggende erhvervslejemål på 105...
- 105 m²
Boulevarden 33B, st. th., 9000 Aalborg
Boulevarden 33B, st. th., 9000 Aalborg Attraktivt erhvervslejemål på 29...
- 29 m²
Parallelvej 9, 9900 Frederikshavn
Parallelvej 9, 9900 Frederikshavn Stort og velplaceret erhvervslejemål i Frederikshavn...
- 386 m²
Østergade 26A, 9800 Hjørring
Østergade 26A, 9800 Hjørring Stort og velplaceret erhvervslejemål i Hjørrings...
- 68 m²
Mammutpladsen 5, st., 9800 Hjørring
Mammutpladsen 5, st., 9800 Hjørring Stort lejemål på hele 235...
- 235 m²
Mammutpladsen 5, 1., 9800 Hjørring
Mammutpladsen 5, 1., 9800 Hjørring Centralt lejemål på 77 kvm...
- 77 m²
Fyensgade 32, st. th., 9000 Aalborg
Fyensgade 32, st. th., 9000 Aalborg Synligt erhvervslejemål på 64...
- 64 m²
Østergade 25C, 9800 Hjørring
Østergade 25C, 9800 Hjørring Synligt erhvervslejemål på attraktiv placering i...
- 260 m²
Farøvej 1, 9800 Hjørring
Farøvej 1, 9800 Hjørring Stort erhvervslokale på 1.288 m² i...
- 1288 m²