Parallelvej 9, 9900 Frederikshavn
Stort og velplaceret erhvervslejemål i Frederikshavn på 539 kvm!
















Centralt lejemål på Parallelvej 9, 9900 Frederikshavn
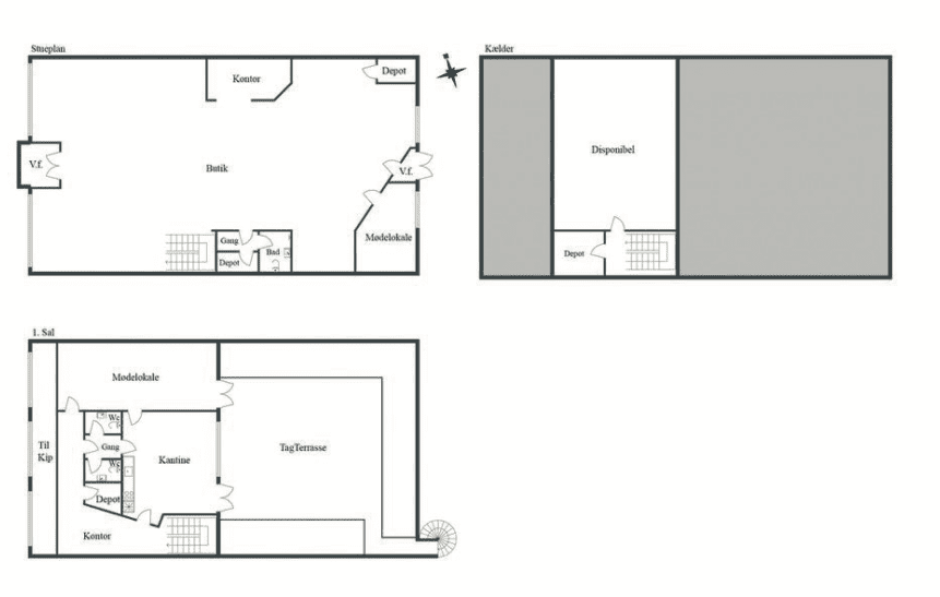
Lejemålet udgør 433 m² og indeholder et præsentabelt indgangsparti til et stort, åbent kontormiljø/butik samt kontor-/møderum og toilet/bad. 1. salen er indrettet med mødelokaler, kontor og toiletforhold – herfra er der ligeledes adgang til en stor tagterrasse, som giver ekstra kvalitet til hverdagen. Til lejemålet hører en kælder på 106 m², der i dag anvendes til teknikrum og lager og er oplagt til opbevaring/arkiv.
Derudover er der 5 parkeringspladser tilknyttet ejendommen på bagsiden.
Funktionelle faciliteter:
- Synlig og central beliggenhed
- Præsentabel ejendom opført i 2001 i høj bygningsmæssig kvalitet
- Regulær og funktionel planløsning
- 5 private parkeringspladser på bagsiden
- Kælder velegnet til lager/teknik (106 m²)
- Stor tagterrasse fra 1. sal
Lejemålet er placeret i hjertet af Frederikshavn centrum med facade mod Parallelvej og udsigt til Rådhusparken. Her er kort gåafstand til byens gågade og Føtex, og adressen ligger lige overfor Frederikshavn Rådhus, Det Musiske Hus, Biblioteket og Svømmehallen. Området fungerer som et trafikal knudepunkt med let adgang til offentlig transport og gode parkeringsmuligheder i nærmiljøet.
OBS. Lejemålet lejes momsfrit – med mulighed for pålæg af moms
(Sags nr.: 110-36-1)

Tobias Kent H. Kristensen
Relaterede lejemål
Farøvej 1B, 9800 Hjørring
Farøvej 1B, 9800 Hjørring Stort butikslokale på 721 m² med...
- 721 m²
Farøvej 3A, 9800 Hjørring
Farøvej 3A, 9800 Hjørring Lejemålet er beliggende i et synligt...
- 1042 m²
Mammutpladsen 5, 9800 Hjørring (Rum 9)
Mammutpladsen 5, 9800 Hjørring (Rum 9) Professionelt kontor- og klinikfællesskab...
- 47.6 m²
Mammutpladsen 5, 9800 Hjørring
Mammutpladsen 5, 9800 Hjørring Stort lejemål på hele 312 kvm...
- 312 m²
Østergade 26, st. tv., 9800 Hjørring
Østergade 26, st. tv., 9800 Hjørring Stort og velplaceret erhvervslejemål...
- 386 m²
Sct. Olai Plads 1C (Butik B), 9800 Hjørring
Sct. Olai Plads 1C (Butik B), 9800 Hjørring Butikslokale på...
- 381 m²
Østergade 11, 9800 Hjørring
Østergade 11, 9800 Hjørring Attraktivt butikslokale på 175 kvm i...
- 175 m²
Reberbansgade 12, st. tv., 9000 Aalborg
Reberbansgade 12, st. tv., 9000 Aalborg Velbeliggende erhvervslejemål på 105...
- 105 m²
Parallelvej 9, 9900 Frederikshavn
Parallelvej 9, 9900 Frederikshavn Stort og velplaceret erhvervslejemål i Frederikshavn...
- 386 m²
Østergade 26, st. th., 9800 Hjørring
Østergade 26, st. th., 9800 Hjørring Stort og velplaceret erhvervslejemål...
- 86 m²
Mammutpladsen 5, st., 9800 Hjørring
Mammutpladsen 5, st., 9800 Hjørring Stort lejemål på hele 235...
- 235 m²
Mammutpladsen 5, 1., 9800 Hjørring
Mammutpladsen 5, 1., 9800 Hjørring Centralt lejemål på 77 kvm...
- 77 m²